Skip to content

72 Main Road

Stanley TAS 7331

  • 3 Bed
  • 1 Bath
  • 2 Parks
Best Offers Over $489,000
Next open time
21st Dec 2025 (12:00 pm - 12:30 pm)
Enquire now

Have Your Slice Of Stanley | Where Modern Comfort Meets The Perfect Location

Properties like this are exceptionally hard to come by in such a highly sought-after and tightly held location. Perfectly positioned on a generous 1,055m² (approx.) block in the heart of Stanley, 72 Main Road captures the very essence of coastal living while offering everyday convenience. Just minutes from the local shops, cafes, schools, and multiple pristine beaches, this property delivers the ideal lifestyle balance between comfort, charm, and coastal serenity.

The current owners have done a magnificent job of tastefully updating the home while preserving its natural character and timeless appeal. From the moment you step inside, you'll be greeted by a welcoming atmosphere that effortlessly blends charm with modern comfort. Traditional details have been lovingly maintained, while thoughtful upgrades including an updated bathroom have been completed to ensure the home caters to practical living.

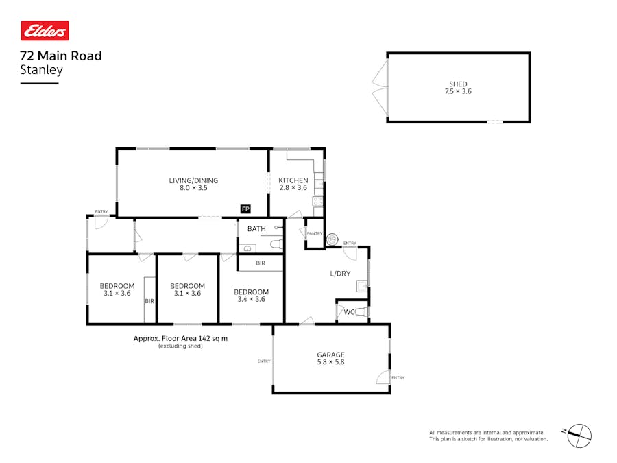
The home offers three spacious bedrooms, two of which include built-in wardrobes, and a light-filled living area that feels both warm and inviting. The central living zone is enhanced by timber floors and a cosy woodfire, keeping the home comfortable year-round. The kitchen is practical and well-designed, providing ample storage and workspace, while the bathroom has been stylishly renovated with quality fittings.

Outside, the property offers a true blank canvas with endless potential. The expansive, level yard provides plenty of room for outdoor living, gardening, or even future extensions (STCA). Enjoy sweeping views of the iconic Stanley Nut right from your backyard, a truly spectacular backdrop that encapsulates the charm of this coastal township. Dual access adds convenience, while a secure garage provides additional storage or parking for a vehicle.

Whether you're looking for a permanent residence, a peaceful holiday retreat, or a smart investment opportunity, 72 Main Road, Stanley, presents an incredibly rare chance to secure a beautifully maintained home in one of Tasmania's most picturesque coastal communities. This property is sure to capture hearts from the moment you arrive.

DISCLAIMER: While Elders Real Estate Burnie has taken every care to verify the accuracy of the details in this advertisement, we cannot guarantee its correctness. Prospective buyers or tenants need to take such action as is necessary, to satisfy themselves of any pertinent matters

Features

General Features

  • Property Type: House
  • Bedrooms: 3
  • Bathrooms: 1
  • Building Size: 142sqm
  • Land Size: 1,055sqm

Indoor Features

  • Toilets: 1

Outdoor Features

  • Garage Spaces: 2

Can I afford 72 Main Road?

Whether you’re a first-time buyer, looking for your next home, or considering upgrading or downgrading, Elders Finance can unlock the doors to the right finance option for you and get you into the home of your dreams.

Calculators

Elders Real Estate Burnie

Enquire about 72 Main Road, Stanley, TAS, 7331

Property guides and resources

Outdoor Living for an Australian Summer

There’s something uniquely Aussie about spending summer outdoors. Barefoot BBQs, late-night chats…
Read more

Prepare Your Holiday Rental Property for the Summer Busy Season

If you own a holiday rental, summer is your grand-final season. Bookings…
Read more

The 2025 Commercial Market Wrap: Resilience, Repositioning and Regional Strength

Australia’s commercial property market has demonstrated remarkable resilience through the 2025 financial…
Read more