Skip to content

31 Marine Terrace

Burnie TAS 7320

  • 1 Bath
$520,000
Enquire now

PRIME DUAL-INCOME INVESTMENT – COMMERCIAL + RESIDENTIAL

Secure Yield with Long-Term Tenants and Room to Grow in Burnie's Rapidly Growing Civic Precinct

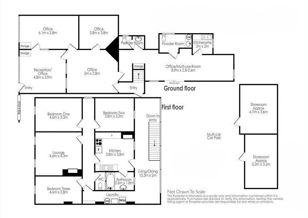
Elders Real Estate is proud to present 31 Marine Terrace, an exceptional and rare mixed-use investment opportunity just a stone's throw from the Burnie CBD.

Set on a generous 534m² allotment* with valuable and sought after off-street parking, this solid property offers two long-term, income-generating tenancies:

• A ground-floor commercial space, leased for over 7 years to a reliable tenant with annual CPI increases and a fresh 3yr lease;
• A first-floor residential apartment, tenanted for more than 12 years, with regular rent increases

Together, these generate a stable and attractive net return with the commercial tenant paying outgoings on top, providing low-maintenance cash flow from day one and room to grow your income.

Positioned on the edge of Burnie's dynamic Civic Renewal Precinct, and just one block from the proposed new courthouse development, this property is poised to benefit from significant public investment and growing foot traffic. Its strategic location offers easy access to retail, civic, and transport amenities, while also being within walking distance to the Burnie Wharf and the scenic Coastal Pathway-currently under construction across the road.

Key features:

• Mixed-use zoned property with strong rental history
• Long-standing tenants with consistent cash flow
• Positioned for future capital growth (STCA)
• Off-street parking – rare in this part of Burnie
• Sold as a going concern – no GST applicable if applicable conditions are met
• Opportunity for development within a sought after area


Whether you're looking to diversify your portfolio or secure a foothold in one of Tasmania's emerging growth corridors, 31 Marine Terrace delivers the perfect balance of stability and upside potential.

Contact our office today for the detailed Information Memorandum.

DISCLAIMER: While Elders Real Estate Burnie has taken every care to verify the accuracy of the details in this advertisement, we cannot guarantee its correctness. Prospective buyers or tenants need to take such action as is necessary, to satisfy themselves of any pertinent matters.

Features

General Features

  • Property Type: Apartment
  • Bathrooms: 1
  • Building Size: 263sqm
  • Land Size: 534sqm

Indoor Features

  • Toilets: 1

Can I afford 31 Marine Terrace?

Whether you’re a first-time buyer, looking for your next home, or considering upgrading or downgrading, Elders Finance can unlock the doors to the right finance option for you and get you into the home of your dreams.

Calculators

Elders Real Estate Burnie

Enquire about 31 Marine Terrace, Burnie, TAS, 7320

Property guides and resources

Finding a Pet Friendly Rental in 2026: What Renters Need to Know

For many Australians, pets are no longer simply animals that live at…
Read more

The 2026 Budget and Regional Commercial Property: Where The Real Shift Lands

The 2026 Federal Budget has been read, fairly, as a residential housing…
Read more

Federal Budget 2026–27: What It Means for Property Owners, Renters and Investors

The 2026–27 Federal Budget introduces a range of changes to Australia’s property…
Read more