Skip to content

1-3 Stevens Place

Park Grove TAS 7320

  • 5 Bed
  • 3 Bath
  • 5 Toilet
  • 4 Parks
Best Offers Over $1,200,000
Enquire now

Space, Location & Lifestyle ~ Everything You've Been Waiting For.

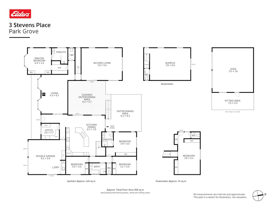
If you've been searching for a picture-perfect, traditional family home with strong street appeal, space and versatility, 1–3 Stevens Place, Park Grove is the one you've been waiting for. Set in a prime Park Grove location on an expansive 2,083m² allotment, this impressive residence delivers on every level.

With five bedrooms and three bathrooms this home has been thoughtfully designed to accommodate for the whole family. Multiple living zones flow seamlessly, creating the perfect balance between entertaining and everyday family life. While the indoor–outdoor connection to alfresco spaces, creates the ultimate entertaining retreat, allowing you to truly unwind and enjoy life to the fullest.

Inside Features:
- Two spacious living areas, including one warmed by a Nectre woodfire and the other serviced by a Daikin reverse-cycle system for year-round comfort
- Separate rumpus room with bar, and additional toilet with vanity ideal for entertaining. This is complete with reverse-cycle heating and cooling
- Five toilets throughout the home, offering outstanding convenience for families and guests
- Central kitchen featuring a large island bench with enough room for the whole family. From here there is direct access to the covered deck, creating a seamless indoor–outdoor entertaining space
- Master suite with beautiful bay windows overlooking the front yard. Extensive storage and a private ensuite with shower and toilet
- Second bedroom also features an ensuite with shower, toilet and vanity
- Fifth bedroom with its own toilet, vanity, and external access - ideal for guests, extended family, or a home studio with excellent storage
- A dedicated home office with built-in desks, ideal for remote work or study
- Central main bathroom with shower and bath.
- New carpet throughout.
- 30 solar panels and a comprehensive security system
- Double garage with integrated laundry

Outside Features:
- Situated on over 2000sm of land in a desirable location.
- Three points of Access, (2x Stevens Place and 1x Mooreville Road)
- Under cover deck with access of the kitchen and second living area. This leads down to an impressive fire pit zone.
- Flat, family-friendly backyard
- Double 7.0x7.6m shed with additional sitting or retreat space
- Welcoming front patio enhancing street appeal

Perfectly positioned in Park Grove, 1–3 Stevens Place offers exceptional convenience for families and professionals alike. The home is within easy walking distance to Hellyer College and TAFE. Everyday essentials are close at hand, with the local IGA, Plants Plus and popular cafés all nearby, while the Burnie CBD and Northwest Reginal Hospital are only a short drive away, providing access to all key amenities and services.

Properties of this size, versatility and location are exceptionally far and few between. Making this a rare opportunity to secure an outstanding family residence in one of Park Grove's most sought-after pockets.

DISCLAIMER: While Elders Real Estate Burnie has taken every care to verify the accuracy of the details in this advertisement, we cannot guarantee its correctness. Prospective buyers or tenants need to take such action as is necessary, to satisfy themselves of any pertinent matters

Features

General Features

  • Property Type: House
  • Bedrooms: 5
  • Bathrooms: 3
  • Building Size: 358sqm
  • Land Size: 2,083sqm
  • Living Areas: 2

Indoor Features

  • Toilets: 5
  • Alarm System
  • Built In Wardrobe
  • Ensuite Bathroom

Outdoor Features

  • Garage Spaces: 2
  • Open Car Spaces: 2
  • Secure Parking
  • Deck
  • Outdoor Entertainment
  • Shed

Other Features

  • Close to Schools
  • Close to Shops
  • Close to Transport

Can I afford 1-3 Stevens Place?

Whether you’re a first-time buyer, looking for your next home, or considering upgrading or downgrading, Elders Finance can unlock the doors to the right finance option for you and get you into the home of your dreams.

Calculators

Elders Real Estate Burnie

Enquire about 1-3 Stevens Place, Park Grove, TAS, 7320

Property guides and resources

Finding a Pet Friendly Rental in 2026: What Renters Need to Know

For many Australians, pets are no longer simply animals that live at…
Read more

The 2026 Budget and Regional Commercial Property: Where The Real Shift Lands

The 2026 Federal Budget has been read, fairly, as a residential housing…
Read more

Federal Budget 2026–27: What It Means for Property Owners, Renters and Investors

The 2026–27 Federal Budget introduces a range of changes to Australia’s property…
Read more